Aktuelles Projekt "LA DOLCE VITA" fertiggestellt
- MEHRFAMILIENHAUS - Projektierung
- Fertigstellung vsl. 04/2024 (bereits in 03/2024 fertiggestellt)
Das Objekt finden Sie in lebendiger Gegend in Köln Rodenkirchen. Die Buslinien 130, 131 und 134 verkehren in der Nähe. In Laufnähe gibt es einige Restaurants, eine Bäckerei und einen Supermarkt. Auch verschiedene Grün- und Parkanlagen und Fitnessstudios erreichen Sie.
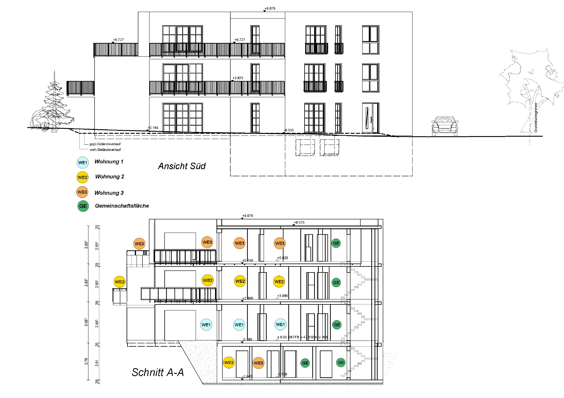
Das moderne Wohnensemble " LA DOLCE VITA" liegt in einer ruhigen Anliegerstraße von Köln- Rodenkirchen, in einem Viertel, das eine attraktive, moderne und lebenswerte Adresse ist: das Musikerviertel.
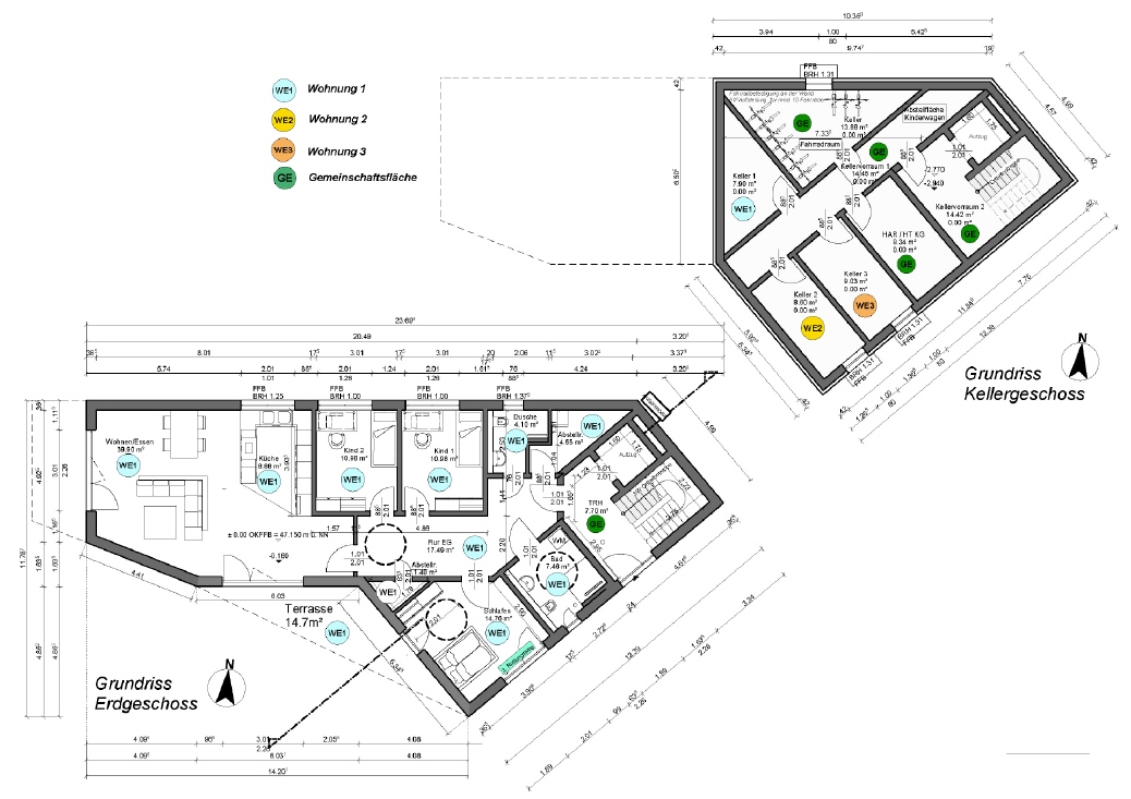
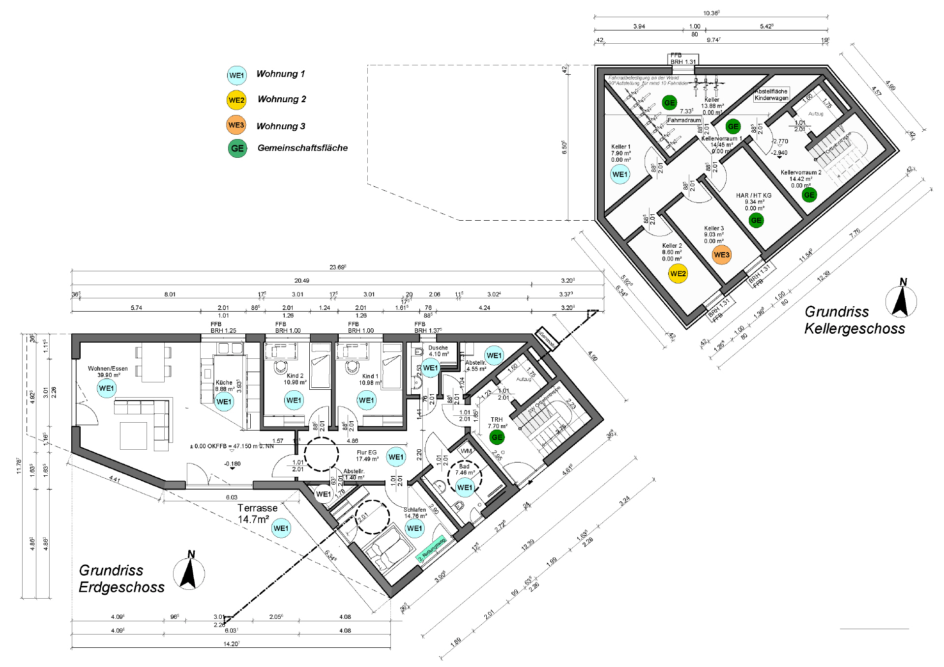
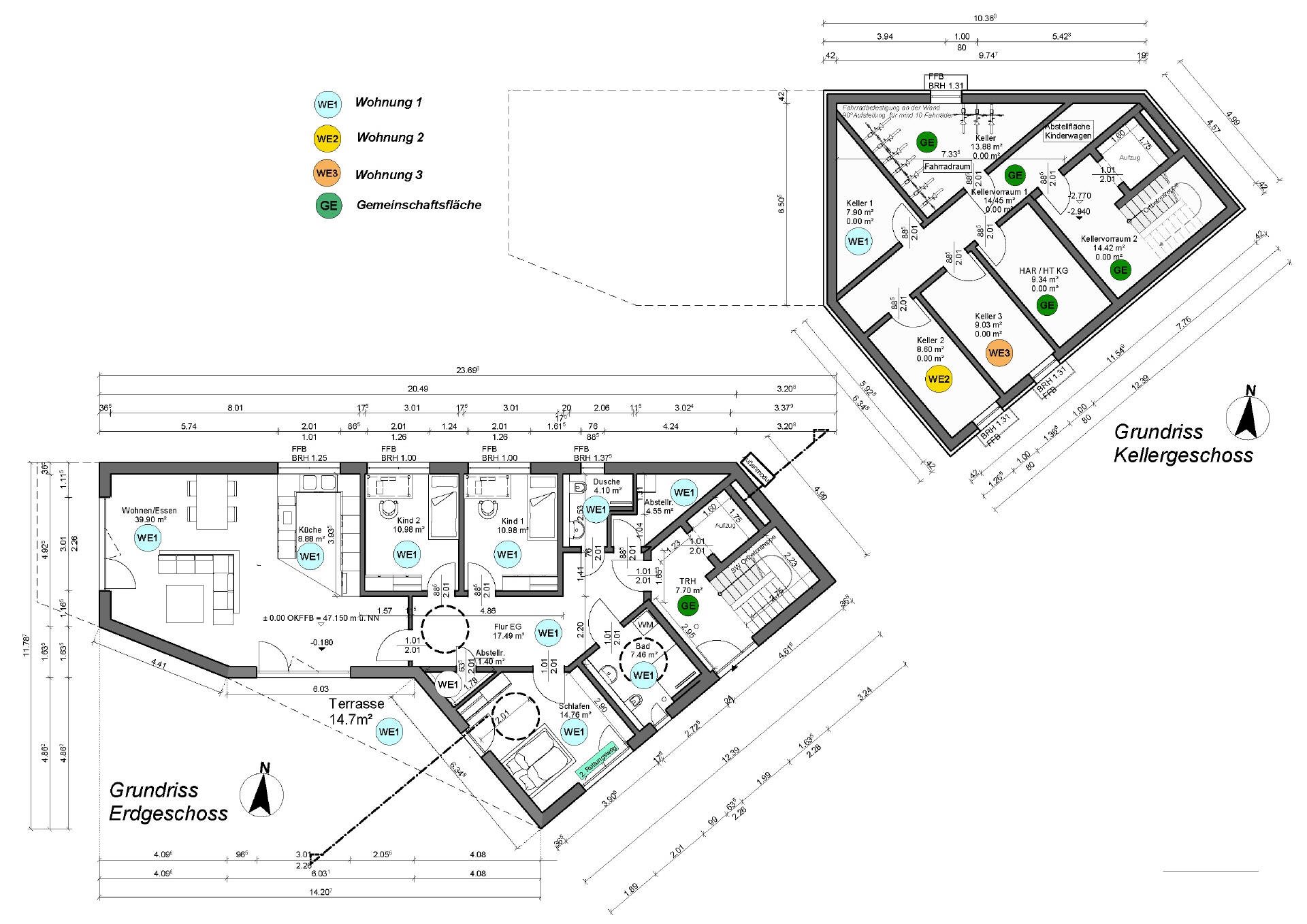
Hier finden sie insgesamt drei Wohnungen mit hochwertiger Bauausführung und durchdachten Grundrissen. Es vereinen sich klassische und moderne Elemente.
Das Motto „La Dolce Vita“ spiegelt sich auch in der hochwertigen Innenausstattung der Eigentumswohnungen sowie durch die großen Sprossenfenster die für ideale Lichtverhältnisse und ein willkommenes Ambiente sorgen.
Ergänzend dazu kommen noch die Südwest ausgerichteten grosse Sonnenterrassen und Balkone hinzu die eine “natürliche” Erweiterung des Wohnraums ermöglichen. Die ruhige Lage des Grundstücks komplettiert die Möglichkeit vom idyllischen Wohnen.
Die exklusiven Terrassenwohnungen zeichnen sich durch eine luxuriöse Innenausstattung aus. Zwei Badezimmer komplettieren jeweils vier attraktive Zimmer zu modern ausgestatteten Wohnungen zum Wohlfühlen. Die Wohnungen sind barrierefrei und lassen sich bequem über einen Fahrstuhl erreichen. Auf den wunderschönen Terrassen lässt es sich wunderbar vom Alltagsstress erholen. Zu jeder Wohnung gehört außerdem ein Stellplatz und ein Kellerraum. Das monatliche Hausgeld beträgt ca. 2,60 €/pro qm. Die Projektierung wird zum 04/2023 fertiggestellt.
KfW-Efizienzhaus 70 in Massivbauweise
- KfW-Effizienshaus 70 in Massivbauweise
- Fasade weiß verputzt mit besonderen Details wie Attika und Fensterfaschen
- Balkone / französische Balkone mit schwarzem pulverbeschichteten Geländer
- Fenster / Fenstertüren mit Sprossen, dreifach verglast
- Rollläden, außenliegend elektrisch
- Luftwärmepumpe
- Fahradraum vorhanden
- Barrierefreihaeit aller Wohnungen
- Hauswirtschaftsraum in der Wohnung
- Audio-Video-Gegesprechanlage
- Fußbodenheizung in allen Räumen
- Zusätzlicher Handtuchheizkörper im Bad
- Dreifachverglasung
- Audio-Video Gegensprechanlage
- Energieeffizientes Haus
- Sanitär Markenprodukte
- Aufzug vorhanden (Barrierefreier Zugang)
- 2 Bäder
- 2 Terrassen
- Keller mit Fußbodenheizung
- 1 Stellplatz
- Hochwertige Bodenbeläge
- Gartenalleinnutzung nur EG
| La Dolce Vita - Ergänzung zur Ausstattungsbeschreibung hier [908 KB] |
Wohnfläche
| EG | 1.OG | 2.OG | |
|---|---|---|---|
| Wohnzimmer | 39,90 qm | 39,89 qm | 30,43 qm |
| Küche | 8,88 qm | 8,88 qm | 8,91 qm |
| Kind | 10,98 qm | 10,98 qm | 9,55 qm |
| Kind | 10,98 qm | 10,98 qm | ***** |
| Diele | 17,56 qm | 17,56 qm | 12,09 qm |
| Abstellraum 2 | 1,40 qm | 1,40 qm | 1,29 qm |
| Schlafzimmer | 14,76 qm | 14,76 qm | 14,76 qm |
| Bad | 7,47 qm | 7,55 qm | 7,55 qm |
| Bad 2 | 4,10 qm | 4,10 qm | 2,58 qm |
| Abstellraum 1 | 4,55 qm | 4,55 qm | 2,47 qm |
| Terasse 1 | 8,42 qm | 7,75 qm | 22,50 qm |
| Terasse 2 | 21 qm | 5,60 qm | 7,50 qm |
| Gesamt | ca. 150 qm | ca. 134 qm | ca. 120 qm |







